Property 13 from 21
Next property
Previous property
Back to the overview
Back to the overview
Next property
Previous property
Back to the overviewPorto Cristo: Exclusive finca with approved building project near Porto Cristo
Property ID: CD-6956CA
Quick Contact
Options
Options
Basic information
Address:
ES-07680 Porto Cristo
Islas Baleares
Islas Baleares
Region:
Mallorca
Price:
250.000 €
Living space:
433,20 sq. m.
Plot size:
18.350 sq. m.
No. of rooms:
9
Details
Details
Type of house:
Finca
Useable area:
573,90 sq. m.
Number of bedrooms:
6
Number of bathrooms:
5
Number of parking spaces:
1 x Garage
Further information
Further information
Property description:
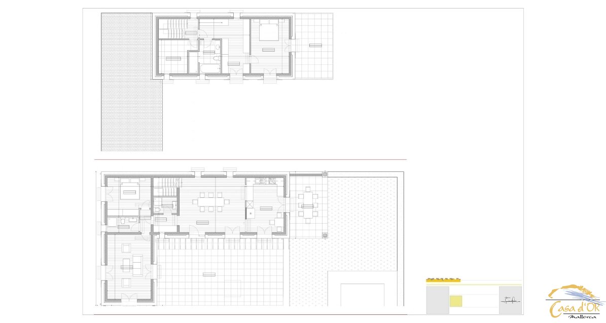
Unique Opportunity in Mallorca
This exceptional finca in a sought-after location between Manacor and Porto Cristo offers a rare opportunity in Mallorca: a building project with prior approval on a generous plot of land – including the original permit. A true rarity, as this type of construction would hardly be possible under current legislation.
Here, vision, security, and exclusivity combine to create a project with enormous potential – ideal for owner-occupiers or investors.
Project & Architecture
The plan is for a modern, light-filled finca with approximately 400 m² of living space, meeting the highest standards of design, comfort, and quality of life.
5 spacious bedrooms
Luxurious master suite
Separate guest wing
Open-plan living and dining area with designer kitchen
Generous windows for seamless transitions between indoors and outdoors
The architectural concept combines modern elegance with Mediterranean lightness – perfectly integrated into the natural surroundings.
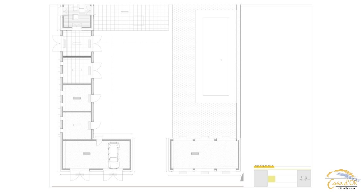
Exterior & Features
The exterior will be the highlight of the property:
Elegant pool area with sun terraces
Extensive natural areas with diverse landscaping options
Privacy and tranquility amidst a Mediterranean landscape
The basement includes utility rooms and additional storage space. Thanks to existing permits, individual customization options can be implemented, such as:
Photovoltaic system
Cistern
Garage or carport
Smart home solutions
Location & Surroundings
The finca is located in one of the most sought-after regions of Mallorca's east coast – peacefully situated yet with excellent transport links.
Only about 2 km to Porto Cristo
Approximately 10 minutes to Manacor
45–50 minutes to Palma Airport
Approximately 55 minutes to the center of Palma
Porto Cristo captivates visitors with its charming harbor, fine sandy beach, lively promenade, and the famous Caves of Drach.
Manacor offers year-round amenities including doctors, restaurants, shopping facilities, and the internationally renowned Rafa Nadal Sports Center.
A location that combines tranquility, nature, and a Mediterranean lifestyle with optimal accessibility.
Conclusion
This finca is far more than just a plot of land with a building project – it's a rare investment opportunity in Mallorca.
Whether as an exclusive private residence, a luxurious holiday home, or a high-yield investment:
Here, a place is being created that unites individuality, quality, and lifestyle at the highest level.
Contact us now for more information or to arrange a viewing.
This exceptional finca in a sought-after location between Manacor and Porto Cristo offers a rare opportunity in Mallorca: a building project with prior approval on a generous plot of land – including the original permit. A true rarity, as this type of construction would hardly be possible under current legislation.
Here, vision, security, and exclusivity combine to create a project with enormous potential – ideal for owner-occupiers or investors.
Project & Architecture
The plan is for a modern, light-filled finca with approximately 400 m² of living space, meeting the highest standards of design, comfort, and quality of life.
5 spacious bedrooms
Luxurious master suite
Separate guest wing
Open-plan living and dining area with designer kitchen
Generous windows for seamless transitions between indoors and outdoors
The architectural concept combines modern elegance with Mediterranean lightness – perfectly integrated into the natural surroundings.
Exterior & Features
The exterior will be the highlight of the property:
Elegant pool area with sun terraces
Extensive natural areas with diverse landscaping options
Privacy and tranquility amidst a Mediterranean landscape
The basement includes utility rooms and additional storage space. Thanks to existing permits, individual customization options can be implemented, such as:
Photovoltaic system
Cistern
Garage or carport
Smart home solutions
Location & Surroundings
The finca is located in one of the most sought-after regions of Mallorca's east coast – peacefully situated yet with excellent transport links.
Only about 2 km to Porto Cristo
Approximately 10 minutes to Manacor
45–50 minutes to Palma Airport
Approximately 55 minutes to the center of Palma
Porto Cristo captivates visitors with its charming harbor, fine sandy beach, lively promenade, and the famous Caves of Drach.
Manacor offers year-round amenities including doctors, restaurants, shopping facilities, and the internationally renowned Rafa Nadal Sports Center.
A location that combines tranquility, nature, and a Mediterranean lifestyle with optimal accessibility.
Conclusion
This finca is far more than just a plot of land with a building project – it's a rare investment opportunity in Mallorca.
Whether as an exclusive private residence, a luxurious holiday home, or a high-yield investment:
Here, a place is being created that unites individuality, quality, and lifestyle at the highest level.
Contact us now for more information or to arrange a viewing.
Commission Rate:
With the acquisition of a real estate in Spain, the incidental purchase costs (land transfer tax, notary fees and land register costs) are to be borne by the buyer.
The broker"s commission is at the expense of the seller!
The broker"s commission is at the expense of the seller!
Remarks:
As your contact person before, during and after the purchase, we are always happy to provide you with advice and support. We always try to answer your questions in the best possible way - do not hesitate to contact us!
Since we do not determine object data ourselves, we do not assume any guarantee for this. This exposé is only intended for you personally.
A passing on to third parties is bound to our explicit consent and does not prevent our commission claim in case of a contract. All discussions are to be conducted through us. In case of violation we expressly reserve the right to claim damages up to the amount of the commission. The information provided by us is based on information provided by the seller. For the accuracy and completeness of the information can not be guaranteed or liability. An intermediate sale and errors are reserved.
Since we do not determine object data ourselves, we do not assume any guarantee for this. This exposé is only intended for you personally.
A passing on to third parties is bound to our explicit consent and does not prevent our commission claim in case of a contract. All discussions are to be conducted through us. In case of violation we expressly reserve the right to claim damages up to the amount of the commission. The information provided by us is based on information provided by the seller. For the accuracy and completeness of the information can not be guaranteed or liability. An intermediate sale and errors are reserved.
General business conditions:
We refer to our general terms and conditions. By further use of our services you declare your knowledge and your agreement.
ON REQUEST, we can recommend financing experts from renowned institutions such as Caixa Bank, Santander, BBVA or Banca March.
Your contact person
Back to the overview



























