Objeto 14 de 24
Inmueble siguiente
Inmueble anterior
Volver al resumen
code
Volver al resumen
Inmueble siguiente
Inmueble anterior
Volver al resumenPorto Cristo: Finca con permiso antiguo – proyecto de obra nueva moderna entre Manacor y Porto Cristo
Referencia: CD-6956CA
Contacto rápido
Opciones
Opciones
Datos generales
Dirección:
ES-07680 Porto Cristo
Islas Baleares
Islas Baleares
Región:
Mallorca
Precio:
350.000 €
Superficie útil aprox.:
433,20 m²
Terreno aprox.:
18.350 m²
Cantidad habitaciones:
5
Más datos
Más datos
Tipo de casa:
Finca
Superficie constr. aprox.:
573,90 m²
Cantidad de aparcamientos:
1 x Garaje
Descripción detallada
Descripción detallada
Descripción del inmueble:
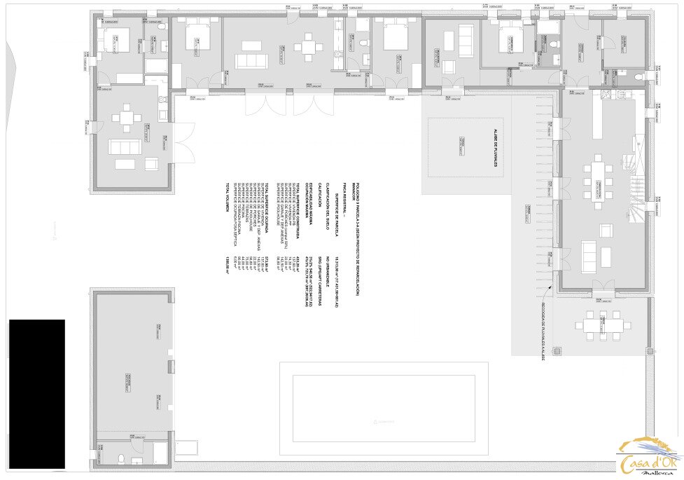
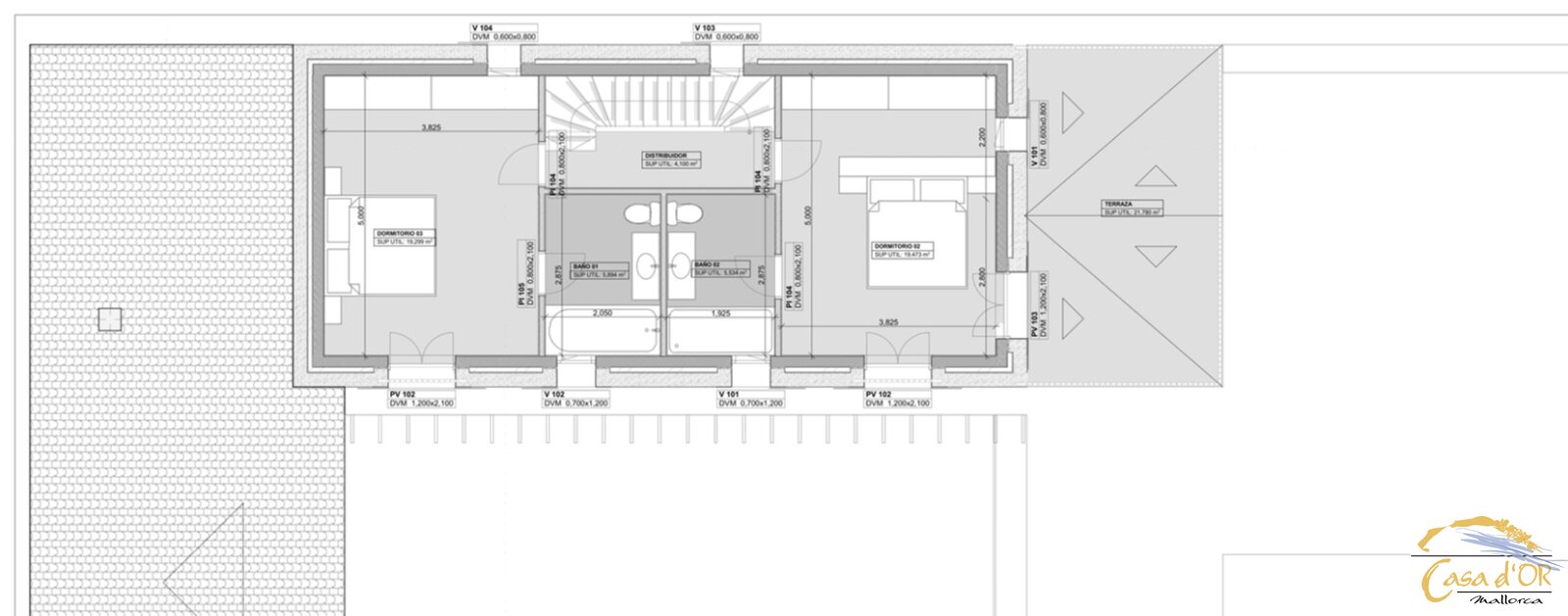
Esta excepcional finca, en una codiciada ubicación entre Manacor y Porto Cristo, ofrece una oportunidad única: un proyecto de construcción con permiso en una amplia parcela con licencia vigente, una auténtica rareza en Mallorca. Este permiso permite un método de construcción prácticamente imposible con la legislación vigente.
El proyecto consiste en una finca moderna y luminosa de aproximadamente 400 m² de superficie habitable, que combina arquitectura, naturaleza y una calidad de vida al más alto nivel. El diseño incluye cinco dormitorios, incluyendo una espaciosa suite principal y un ala independiente para invitados, ideal para familias, amigos o para alquileres vacacionales de lujo.
El corazón de la casa es un salón-comedor de planta abierta con cocina de diseño y acceso directo a las amplias zonas exteriores. Los amplios ventanales garantizan una transición fluida entre el interior y el exterior. Una elegante zona de piscina con terrazas soleadas complementa a la perfección el conjunto.
El sótano incluye cuartos de servicio y espacio útil adicional. Gracias a la licencia vigente, se pueden implementar características personalizadas, como un sistema fotovoltaico, una cisterna o un garaje.
Ya sea una elegante residencia privada, una casa de vacaciones multigeneracional o una inversión de alto rendimiento, este proyecto combina visión, seguridad y exclusividad.
El proyecto consiste en una finca moderna y luminosa de aproximadamente 400 m² de superficie habitable, que combina arquitectura, naturaleza y una calidad de vida al más alto nivel. El diseño incluye cinco dormitorios, incluyendo una espaciosa suite principal y un ala independiente para invitados, ideal para familias, amigos o para alquileres vacacionales de lujo.
El corazón de la casa es un salón-comedor de planta abierta con cocina de diseño y acceso directo a las amplias zonas exteriores. Los amplios ventanales garantizan una transición fluida entre el interior y el exterior. Una elegante zona de piscina con terrazas soleadas complementa a la perfección el conjunto.
El sótano incluye cuartos de servicio y espacio útil adicional. Gracias a la licencia vigente, se pueden implementar características personalizadas, como un sistema fotovoltaico, una cisterna o un garaje.
Ya sea una elegante residencia privada, una casa de vacaciones multigeneracional o una inversión de alto rendimiento, este proyecto combina visión, seguridad y exclusividad.
Ubicación:
La finca se encuentra en una de las zonas más populares de la costa este de Mallorca, rodeada de suaves colinas, campos y vegetación mediterránea. Se encuentra a solo 2 kilómetros de Porto Cristo y a unos 10 minutos en coche de Manacor.
Porto Cristo, con su encantador puerto, playa de arena fina, paseo marítimo y las famosas Cuevas del Drach, ofrece un estilo de vida mediterráneo puro. Manacor, la segunda ciudad más grande de Mallorca, cuenta con servicios durante todo el año, como médicos, supermercados, restaurantes y el internacionalmente conocido Rafa Nadal Sports Center.
La autopista más cercana (Ma-15) está a pocos minutos; desde allí, se puede llegar al aeropuerto de Palma en tan solo 45-50 minutos y al centro de Palma en unos 55 minutos.
Una ubicación que ofrece paz y tranquilidad, a la vez que está perfectamente comunicada.
Porto Cristo, con su encantador puerto, playa de arena fina, paseo marítimo y las famosas Cuevas del Drach, ofrece un estilo de vida mediterráneo puro. Manacor, la segunda ciudad más grande de Mallorca, cuenta con servicios durante todo el año, como médicos, supermercados, restaurantes y el internacionalmente conocido Rafa Nadal Sports Center.
La autopista más cercana (Ma-15) está a pocos minutos; desde allí, se puede llegar al aeropuerto de Palma en tan solo 45-50 minutos y al centro de Palma en unos 55 minutos.
Una ubicación que ofrece paz y tranquilidad, a la vez que está perfectamente comunicada.
Comisión:
En la adquisición de un inmueble en España, los costes accesorios de la compraventa (impuesto de transmisiones patrimoniales, gastos de notario y de registro de la propiedad) corren a cargo del comprador.
¡La comisión del corredor es a expensas del vendedor!
¡La comisión del corredor es a expensas del vendedor!
Nota:
Como su persona de contacto antes, durante y después de la compra, siempre estaremos encantados de proporcionarle asesoramiento y apoyo. Siempre intentamos responder a sus preguntas de la mejor manera posible - ¡no dude en ponerse en contacto con nosotros!
Dado que no determinamos los datos de los objetos nosotros mismos, no asumimos ninguna garantía al respecto. Esta exposición sólo está destinada a usted personalmente.
La transmisión a terceros está sujeta a nuestro consentimiento explícito y no impide nuestra reclamación de comisiones en caso de un contrato. Todas las discusiones se llevarán a cabo a través de nosotros. En caso de violación, nos reservamos expresamente el derecho a reclamar una indemnización por daños y perjuicios hasta el importe de la comisión. La información proporcionada por nosotros se basa en la información proporcionada por el vendedor. Por la exactitud e integridad de la información no se puede garantizar o responsabilidad. Una venta intermedia y los errores están reservados.
Dado que no determinamos los datos de los objetos nosotros mismos, no asumimos ninguna garantía al respecto. Esta exposición sólo está destinada a usted personalmente.
La transmisión a terceros está sujeta a nuestro consentimiento explícito y no impide nuestra reclamación de comisiones en caso de un contrato. Todas las discusiones se llevarán a cabo a través de nosotros. En caso de violación, nos reservamos expresamente el derecho a reclamar una indemnización por daños y perjuicios hasta el importe de la comisión. La información proporcionada por nosotros se basa en la información proporcionada por el vendedor. Por la exactitud e integridad de la información no se puede garantizar o responsabilidad. Una venta intermedia y los errores están reservados.
Condiciones generales:
Nos remitimos a nuestras condiciones generales. Al utilizar nuestros servicios, usted declara su conocimiento y su acuerdo.
A PETICIÓN recomendamos a los expertos en financiación de instituciones de renombre como Caixa Bank, Santander, BBVA o Banca March.
Persona de contacto
Volver al resumen



















